
令和元年(2019年)11月14・15日、天皇陛下の即位後に「大嘗宮の儀」が執り行われ、日本中が注目しました。
毎年行われる「新嘗祭」とどう違うのか、何が秘儀なのか、そもそもこの祭りが何を意味するのか——わかりやすいようでいて、実はこれほど深く問えば問うほど答えが見えなくなる儀式もありません。
本記事では大嘗祭の基本から、儀式の流れ、新嘗祭との違い、そして民俗学者・折口信夫が昭和3年に発表した「大嘗祭の本義」とその論争まで、段階を踏んで解説します。「簡単にわかったつもり」になるのではなく、この祭りが抱える深みにともに向き合う記事です。
広告
大嘗祭とは——一世一度の「大いなる新嘗」
大嘗祭(だいじょうさい)とは、天皇が即位した後に一度だけ行う、特別な新嘗祭のことです。
「おおにえのまつり」とも読み、「大嘗会(だいじょうえ)」とも呼ばれてきました。宮内庁は令和元年の大嘗祭にあたってこう説明しています。
大嘗祭は,稲作農業を中心とした我が国の社会に古くから伝承されてきた収穫儀礼に根ざしたものであり,天皇が即位の後,初めて,大嘗宮において,新穀を皇祖(天照大神)及び天神地祇(すべての神々)にお供えになって,みずからもお召し上がりになり,皇祖及び天神地祇に対し,安寧と五穀豊穣などを感謝されるとともに,国家・国民のために安寧と五穀豊穣などを祈念される儀式である。
それは,皇位の継承があったときは,必ず挙行すべきものとされ,皇室の長い伝統を受け継いだ,皇位継承に伴う一世に一度の重要な儀式である。大嘗祭の沿革をたどると,その起源は,新嘗の祭に由来する。新嘗の祭については,我が国最古の歴史書である古事記(712年に撰進)や日本書紀(720年に撰進)において,皇祖天照大神が新嘗の祭を行われたことや上古の天皇が新嘗の祭を行われたことの記述が見られるように,その起源は,それらの歴史書が編纂された奈良時代以前にまで遡ることができる。
なお,新嘗の祭が,我が国の社会に古くから伝承されたものであることは,常陸国風土記(8世紀前半に完成)に引く説話や万葉集(8世紀半ば過ぎに編纂)の歌によっても明らかである。
7世紀中頃までは,一代に一度行われる大嘗祭と毎年行われる新嘗祭との区別はなかったが,第40代天武天皇の時(御在位673~686年)に,初めて,大嘗祭と新嘗祭とが区別された。爾来,大嘗祭は一世に一度行われる極めて重要な皇位継承儀式とされ,歴代天皇は,即位後必ずそれを行われることが皇室の伝統となった。
なお,歴代天皇のうち大嘗祭を行われなかった例があるが,それは,大嘗祭を行われる前に退位されたり,或いは相次ぐ兵乱などのために経費の調達が困難であったことにより,大嘗祭を挙行することができなかったというような特殊事情があったからである。このほか,歴代天皇の中には,挙行を確認できない若干の例もある。
天皇が神に新穀を供え、ともに食する——その構造は毎年の新嘗祭と同じです。では何が「大」なのか。そこに、この祭りの本質に関わる問いがあります。
広告
新嘗祭との違い——何が「大」きいのか
毎年11月23日(かつての「新嘗祭」、現在の「勤労感謝の日」)に行われる新嘗祭は、天皇がその年の新穀を神々に供え、みずからも食する収穫感謝の祭りです。宮中の常設施設「神嘉殿(しんかでん)」で行われます。これは、天皇陛下が天照大御神をはじめとする神々に新穀を備え、一緒に食事するというものです。
大嘗祭はこの新嘗祭のうち、天皇即位後に初めて行うものを指します。律令時代より前は、大嘗祭と新嘗祭は同一の祭儀の別名でした。天武天皇の時代(7世紀後半)に両者が区別されるようになり、大嘗祭は即位儀礼として独立した位置を与えられました。
| 項目 | 新嘗祭 | 大嘗祭 |
|---|---|---|
| 頻度 | 毎年 | 一世一度 |
| 祭場 | 常設の神嘉殿 | 大嘗宮(そのたびに造営・終了後解体) |
| 神饌の米 | 宮内省官田の米 | 卜定された悠紀・主基の斎田の米 |
| 期間 | 卯・辰の2日間 | 卯〜午の4日間(より大規模) |
| 準備 | 中央官司が担当 | 悠紀・主基の国司が中心 |
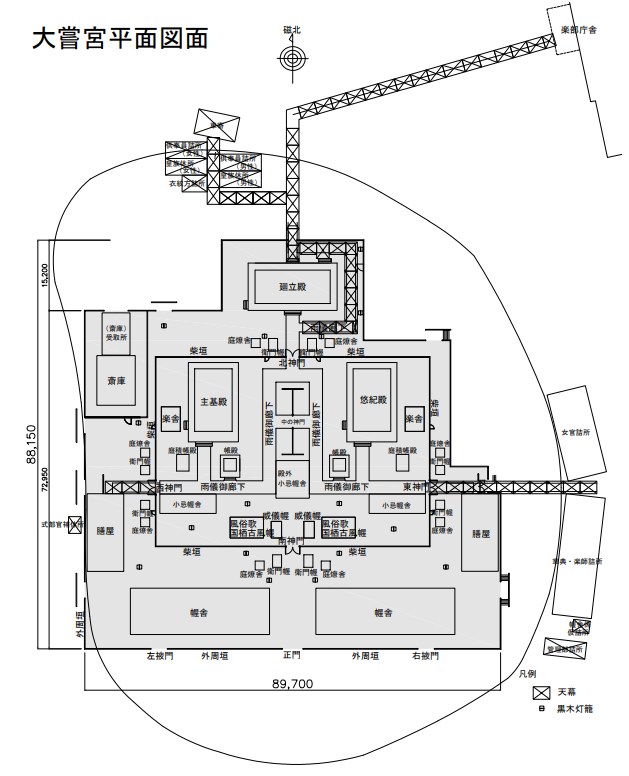
最大の違いは「大嘗宮(だいじょうきゅう)」の存在です。この祭りのためだけに、悠紀殿(ゆきでん)・主基殿(すきでん)の2棟の神殿を含む大嘗宮が皇居内に仮設されます。儀式が終わると解体されます。令和の大嘗宮は令和2年1月に解体されました。
大嘗宮平面図面
広告
悠紀・主基とは——東西から選ばれた神聖な田
大嘗祭に用いる米は特別です。全国を東(悠紀)と西(主基)の二地域に分け、それぞれ1か所ずつ「斎田(さいでん)」が選ばれます。この選定を「斎田点定の儀(さいでんてんじょうのぎ)」といい、亀の甲羅を焼いてひびを読む「亀卜(きぼく)」という古代の占いによって決めます。
選ばれた地域では翌年の大嘗祭に向けて田を設け、清浄に米を育て、秋に「斎田抜穂の儀」で収穫します。令和の大嘗祭では悠紀地方に栃木県、主基地方に京都府が選ばれました。
広告
儀式の流れ——準備から直会まで
大嘗祭は11月14・15日の「大嘗宮の儀」を中心に、前後にさまざまな儀式が連なります。主な流れを整理します。
| 時期・儀式名 | 内容 |
|---|---|
| 斎田点定の儀 | 亀卜により悠紀・主基の地域を選定 |
| 斎田抜穂の儀 | 斎田で育てた新穀を収穫 |
| 大嘗宮の造営 | 悠紀殿・主基殿を含む大嘗宮を皇居内に仮設 |
| 鎮魂祭(みたましずめのまつり) | 大嘗宮の儀の前夜。天皇の魂を鎮める祭儀 |
| 大嘗宮の儀(悠紀殿の儀) | 14日深夜〜15日未明。天皇が悠紀殿で神饌を供え、ともに食する |
| 大嘗宮の儀(主基殿の儀) | 15日深夜〜翌未明。主基殿で同様の儀式を繰り返す |
| 大饗の儀 | 神事の後、天皇が参列者に饗応する宴 |
| 大嘗宮の解体 | 儀式終了後に大嘗宮を撤去 |
中心となる「大嘗宮の儀」は深夜から未明にかけて行われる秘儀で、その内容は一切公開されません。天皇みずからも口外することが許されないとされています。悠紀殿・主基殿の内部で何が行われるか、天皇以外は知ることができません。
また大嘗祭の前夜には必ず「鎮魂祭(みたましずめのまつり)」が行われます。これは新嘗祭の前夜でも同様で、天皇の御魂を鎮め強化するための祭儀です。この鎮魂という概念こそ、大嘗祭の本義をめぐる論争の核心に関わってきます。
⑷ 参列者
大嘗宮の儀は,夕方から翌日の暁前にかけて簡素厳粛に行われるものであるため,その参列者は700名程度とし,外国代表の参列は予定されていない。⑸ 次第
大嘗祭の中心的儀式である大嘗宮の儀の次第は,『貞観儀式』や明治42年(1909年)に定められた『登極令』などに記述されているが,それら
を通じて基本的に異なるところはない。今回も平成度と同様,この長い伝統に従って儀式が行われる。その儀の次第は,おおむね次のとおりである。○ 悠紀殿供饌の儀
・参列者が参進して幄舎(あくしゃ)に着床する。
・稻舂(いなつき)歌を歌い,稻舂を行い(新穀を精白する),神饌(しんせん)を調理する。
・庭積(にわづみ)の 机代物(つくえしろもの)(各都道府県の特産である農林水産物)を置く。
・掌典長が祝詞を奏する。
・天皇陛下が本殿にお進みになり,御座にお着きになる。
・皇后陛下が帳殿(ちょうでん)にお進みになり,御座にお着きになる。
・国栖(くず)の 古風(いにしえぶり)(古代,大和の国栖人が奏した歌謡)を奏する。
・風俗歌(ふぞくうた)を奏する。
・皇后陛下が御拝礼になる。
・皇族殿下が拝礼される。
・参列者が拝礼する。
・皇后陛下が御退出になる。
・神饌を行立(ぎょうりゅう)する。(神饌などを行列を立てて本殿に持ち運ぶ。)
・天皇陛下が神饌を御親供(ごしんく)になる。
(天皇陛下が,新穀をもって調製した御食(みけ)・御酒(みき)などを皇祖及び天神地祇にお供えになる。)
・天皇陛下が御拝礼の上,御告文(おつげぶみ)をお奏しになる。
(天皇陛下が,皇祖及び天神地祇に対し,安寧と五穀豊穣などを感謝されるとともに,国家・国民のために安寧と五穀豊穣などを祈念する御告文
を奏される。)
・御直会(おんなおらい)
(天皇陛下が,新穀をもって調製した御食・御酒をお召し上がりになる。)
・神饌を撤下する。
・天皇陛下が御退出になる。
・参列者が退出する。○ 主基殿供饌の儀
悠紀殿供饌の儀と同様である。
以上の儀式の次第から,冒頭の1において述べたように,「大嘗祭は,稲作農業を中心とした我が国の社会に古くから伝承されてきた収穫儀礼に根ざしたものであり,天皇が即位の後,初めて,大嘗宮において,新穀を皇祖及び天神地祇にお供えになって,みずからもお召し上がりになり,皇祖及び天神地祇に対し,安寧と五穀豊穣などを感謝されるとともに,国家・国民のために安寧と五穀豊穣などを祈念される儀式である。」という大嘗祭の意義がうかがえる。
広告
折口信夫「大嘗祭の本義」——仮説が照らす神話の深層
大嘗祭の意義をめぐる学術的議論の中で、最も有名かつ今もなお論争的な説が、民俗学者・折口信夫(おりくちしのぶ、1887〜1953)が昭和3年(1928年)の昭和天皇大嘗祭の年に発表した論考「大嘗祭の本義」です。
|
|
折口の問い——「変化のうちに隠れているものを見たい」
折口はこの論考でまず一つの姿勢を示します。
「大嘗祭は、平安朝に固定して、今日に及んだもの故、神代その儘、そつくりのものとは考へられない。吾々は、其変化のうちに、隠れて居る所を見たい」
現在の形がそのまま古代の姿ではない。しかし変化の中に隠れた「本義」がある——この問いの立て方が、折口の論考全体を貫いています。
真床覆衾(まどこおふすま)と天皇霊——折口説の核心
折口が「大嘗祭の本義」で提唱したのは、「真床覆衾(まどこおふすま)説」と「天皇霊継承説」です。
折口によれば、大嘗宮の神殿内部に設置された寝床(神座)こそが、この祭りの核心です。日本書紀の天孫降臨神話には、ニニギノミコトが天から降りる際に「真床覆衾(まどこおふすま)」——神聖な褥(しとね)——に覆われていたという記述があります。折口はこの神座をその「真床覆衾」と同一視し、天皇は大嘗祭においてこの衾(ふすま)にくるまることで、「天皇霊(すめらみたま)」——天皇を天皇たらしめる根源的な霊的威力——を身につけると論じました。
天皇の御身体は代ごとに変わるが、魂は不変である。大嘗祭とは、新しい天皇がその魂(天皇霊)を継承し、真の天皇として蘇生する儀式である——これが折口説の骨格です。
折口はさらに、大嘗祭・新嘗祭・即位式・鎮魂祭・元旦の四方拝を「もともと一続きだったもの」として捉え、秋祭り(収穫・神饌供進)→冬祭り(真床覆衾による天皇霊の継承)→春祭り(高御座への昇壇・言葉の発出)という一年サイクルの構造の中に位置づけました。
鎮魂(みたまふり)と魂の蘇生
折口が大嘗祭の本義として特に重視したのが「鎮魂(みたまふり)」の概念です。鎮魂とは魂を鎮める(静める)だけでなく、魂を振り起こし(ふるい)、活性化させる行為でもあります。
折口によれば古代日本人の信仰では、冬になると外から魂が人間の身体に附着しに来ると考えられていました。毎年繰り返される新嘗祭・鎮魂祭は、この魂の「切り替え」と「蘇生」を意味していた。そして一世に一度の大嘗祭は、新しい天皇がこの魂の継承を完全に行う最重要の機会だったのです。
折口は「ふゆ(冬)」という言葉の古義が「ふる(触れる・密着する)」と同源であり、冬とは魂が身体に附着する季節を意味すると論じました。新嘗祭・大嘗祭が11月という「冬の始まり」に行われる意味も、この信仰に根を持っているというのです。
広告
折口説への批判——宮司の反論と宮内庁の沈黙
折口の「天皇霊継承説」は長く影響力を持ち続けましたが、批判も多く寄せられてきました。
平成2年(1990年)11月10日、京都・建勲神社の宮司は講話の中でこう述べました。「大嘗祭の性質につきましては従来色々の説がありましたが、昭和3年に折口信夫博士が真床覆衾・天皇霊継承説を唱え、『大嘗祭の核心は天皇を天皇たらしめる根源的な威力である天皇霊を新しい天皇が大嘗祭でふとんにくるまって身につけられる秘密の儀式である』としました」と紹介した上で、「私はかねてから、この学説に、一種の胡散臭さを感じておりました」と語りました。
そして当時の宮内庁長官・藤森昭一が「大嘗祭の内容を公表する考えはないが、誤った世評は正さねばならない」と発表したことを受けて、「この折口信夫説はその根拠を完全に失った形となりました」と結論づけました。この宮司の結論は明快です。「国民がこぞって今度の天皇陛下の御代もいい御代でありますようにとお供え物を持ち寄り、陛下がそれを神様にお供えし、後、お下がりを皆で直会でいただくというものであります」。
一見わかりやすい着地です。しかし——折口が向かっていたのはそこではありませんでした。
広告
「現代の論理」では届かない場所——プレ・ロジックと古代の祭り
この論争を振り返るとき、思想家・葦津珍彦(あしづたまひこ)の言葉が示唆に富んでいます。
「古代人は、古代の論理で思考した。柳田国男の民俗学などでは、それをプレ・ロジックと云ふ。プレ・ロジックの思考法には、もちろん多くの欠陥もあり弱点がある。プレ・ロジックで思考したことには、迷信や誤りも少なくない。しかし古代の神道や宗教を知るのには、プレ・ロジックを知る必要があるばかりでなく、そこには、往々にして現代ロジックよりも勝るものもあると私は思ふ。」(「皇祖天照大御神——神道神話」)
「収穫に感謝して神にお供えし皆で食べる」という説明は現代の論理で見事にわかりやすい。しかしそこだけに着地した場合、大嘗祭がなぜ「秘儀」でなければならないのか、なぜ建物を毎回建て壊すのか、なぜ前夜に必ず鎮魂祭が行われるのか——という問いに答えられなくなります。
折口の説は「実証的でない仮説」という批判を免れません。天皇が神座に籠もるという記録は資料に見えないと國學院大學の研究も指摘しています。しかしだからこそ折口は「仮説」と明示しながらも、変化の中に「隠れている本義」を掘り起こそうとしました。秘儀の内容が公開されない以上、現代の学問がそこに届く手がかりは、古代の神話・民俗・言語の中にしかないのです。
広告
大嘗祭と天孫降臨神話——神話と儀礼の接点
折口説の中心にある「真床覆衾」は、天孫降臨神話に登場します。天照大御神の孫・ニニギノミコトが地上に降りる際、この神聖な褥に覆われていたとされます。折口はここに「高天原の神が現世に降り立つ」という神話的構造と大嘗祭が接続されていると見ました。
新天皇が大嘗宮の神殿に入ることで「高天原から降りてくる」——この読み方は批判を受けながらも、「なぜ大嘗祭だけが特別なのか」という問いへの、神話論的な答えとして今も一定の説得力を持ち続けています。
實際の祭儀の次第を見ると、大嘗祭の前夜に行われる「鎮魂祭」、深夜に天皇が神殿に入って神饌を供し神と食を共にするという行為、新たな大嘗宮が毎回建て壊されることの意味——これらすべてに「再生・蘇り・更新」という構造が見えます。秋に実りをもたらした稲の霊を通じて、天皇自身の霊が新たな生命力を得て更新される。そのイメージは、折口説の当否とは別に、この祭りの深みを言語化するものとして機能しています。
大嘗祭の歴史——中断と再興
大嘗祭の起源は7世紀後半とされます。天武天皇の時代に大嘗祭と新嘗祭の区別が始まり、持統天皇4年(690年)の記録が現存する最古の確実な大嘗祭とされています。平安時代に儀式の形が整えられ以後は基本的に毎代行われてきましたが、戦国時代に入って朝廷の経済的基盤が失われると、後柏原天皇(在位1500〜1526年)以降約200年間中断しました。
江戸時代の東山天皇の貞享4年(1687年)に徳川幕府の支援によって再興され、以後は代替わりのたびに行われています。明治以降は令和まで途切れることなく続いており、令和元年の大嘗祭は約26年ぶりのことでした。
阿波忌部と麁服——大嘗祭と各地の人々
大嘗祭は天皇一人の儀式ではなく、日本各地の人々が関わる祭りでもあります。悠紀・主基の斎田で米を育てる農家、神饌を運ぶ人々——そして徳島(阿波国)の忌部氏の末裔が織る「麁服(あらたえ)」もその一つです。
麁服とは麻で織った粗い布で、大嘗祭において神に供える神聖な衣装として天皇に献上されます。延喜式(927年成立)から現在まで約1100年間、この役割は阿波忌部の末裔・三木家が担い続けてきました。令和元年の大嘗祭でも、徳島・吉野川市の山崎忌部神社の織殿で麻が織られ、宮内庁に供納されました。大嘗祭は千年以上の時の流れを現代に接続する場でもあるのです。
大嘗祭をどう理解するか——秘儀に向き合う姿勢
大嘗祭について考えるとき、少なくとも二つの姿勢が必要だと思います。
一つは事実として知ること。新穀を神々に供え天皇みずからも食する収穫感謝と即位報告の儀礼である——この説明は正確ですし、理解の出発点として重要です。
もう一つは、その「わかりやすい説明」に収まらない深みを感じ続けることです。なぜ毎回建物を造って壊すのか。なぜ前夜に必ず鎮魂祭があるのか。なぜ秘儀でなければならないのか。現代の論理では届かない何かが、この儀式の中に畳み込まれているとするならば——折口信夫の問いかけは今も有効です。
「大嘗祭は、平安朝に固定して、今日に及んだもの故、神代そのまま、そっくりのものとは考えられない。吾々は、その変化のうちに、隠れているものを見たい」
神代以来の最も重要な儀式を今に伝える大嘗祭は、神話世界と現代をつなぐ数少ない生きた回路の一つです。簡単にわかったつもりになってはなるまい——という葦津珍彦の言葉を、大嘗祭を考えるときの姿勢として胸に刻みたいところです。
あわせて読みたい






